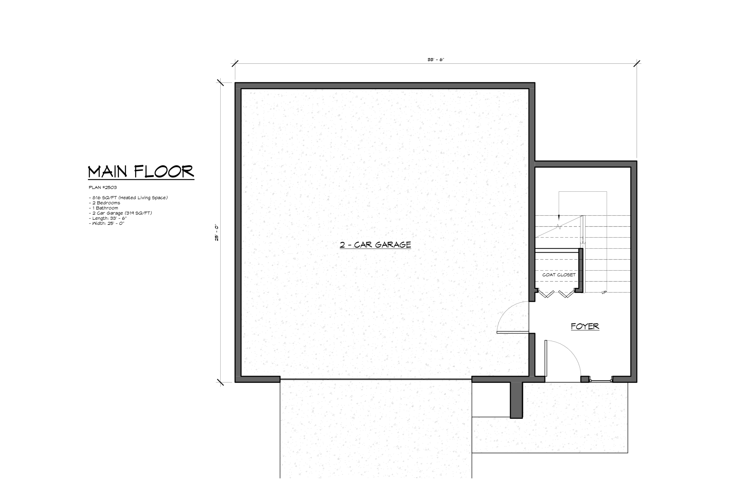
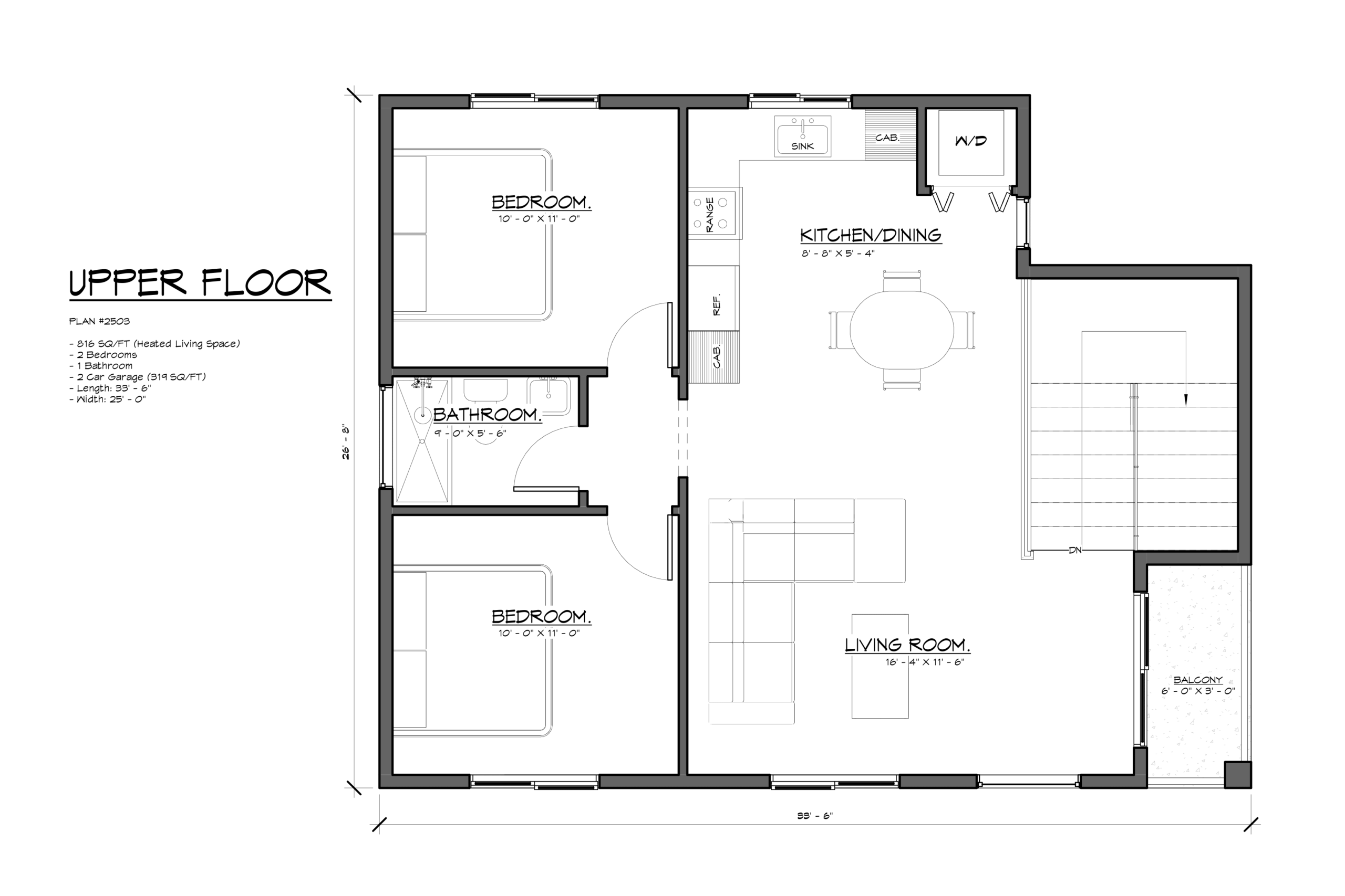
The Garage-Top Studio
816 sq ft | 2 Bed | 1 Bath | 2-Car Garage
Maximize your property with living space above a two-car garage. This efficient design places all living areas on the upper floor, featuring an open kitchen/dining/living layout with two bedrooms and a full bathroom. Perfect for properties where garage parking adds significant value.
- Dimensions: 33'6" × 25'
- Living Space: 816 sq ft heated
- Garage: 319 sq ft (2-car)
- Ideal For: Properties needing covered parking plus rental income
- Key Features: Balcony, open-concept living, efficient use of vertical space







