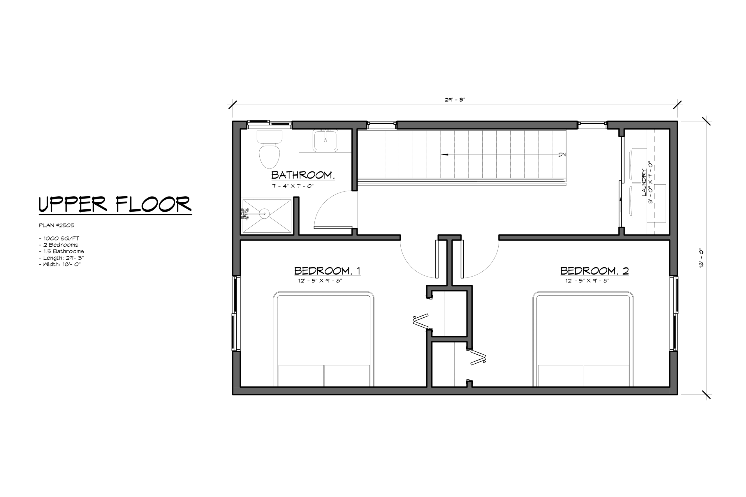
The Contemporary Two-Story
1,000 sq ft | 2 Bed | 1.5 Bath
Our largest standard plan offers maximum living space in a sleek two-story design. The main floor features an open-concept layout with powder room, while upstairs provides two spacious bedrooms with a centrally located full bathroom and convenient laundry area.
- Dimensions: 29'3" × 18'
- Living Space: 1,000 sq ft heated
- Ideal For: Maximum rental income or comfortable family living
- Key Features: Dedicated laundry room, open floor plan, modern aesthetic







